Baerz & Co is een landelijk samenwerkingsverband van zorgvuldig geselecteerde boutique luxury makelaars. Samen vormen wij één netwerk, met één gedeeld aanbod. De woningen die u op onze website ziet, zijn afkomstig van alle aangesloten kantoren binnen Baerz & Co. Daardoor is niet ieder object rechtstreeks door ons kantoor in verkoop, maar door een gespecialiseerde collega binnen ons netwerk. Heeft u een woning gevonden die u aanspreekt en wilt u meer informatie? Dan brengen wij u graag persoonlijk in contact met de betreffende verkoopmakelaar, zodat u direct en zorgvuldig wordt begeleid.

NEEDE
Polhaarweg 7 - 7161 MC
Nederland

€985.000 k.k.
Woonoppervlakte
225m2
Perceeloppervlakte
6180m2
Slaapkamers
4

Omschrijving

Vrijstaand wonen in het groen – rust, ruimte en comfort

Waar de Achterhoek en Twente elkaar raken staat in een natuurrijke omgeving deze goed onderhouden vrijstaande woning met diverse bijgebouwen, een recreatiewoning / B&B en 2 paardenstallen op een ruim perceel van 6180 m². Omgeven door volwassen bomen en een verzorgde tuin geniet u hier optimaal van privacy, ruimte en de prachtige natuur.

Een heerlijke plek voor liefhebbers van vrijstaand wonen in het groen.

Het landhuis
De woning heeft een charmante uitstraling met een karakteristiek dak en een speelse combinatie van hout en metselwerk. Grote raampartijen zorgen voor veel lichtinval en een fijn contact met de groene omgeving. In 1978 is het opgebouwd uit kwalitatief hoogwaardige materialen, hetgeen nog steeds zorgt voor een solide woongenot. En dankzij de aanwezige zonnepanelen voorbereid op energiezuinig wonen. Het landhuis is royaal van opzet met een gebruiksoppervlakte wonen van circa 225 m² en een inhoud van ongeveer 1.040 m³, wat zorgt voor volop leefruimte voor het hele gezin.

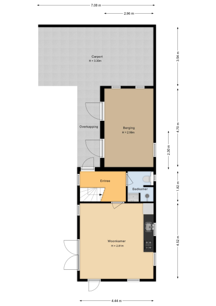
Indeling

Begane grond
Via de overdekte entree komt u in de riante hal met garderobe, toilet en een badkamer voorzien van douche en wastafel. Vanuit de ruime living heeft u een prachtig uitzicht op het groene buitengebeuren, via de schuifpui bereikt u het overdekte terras, een heerlijke plek om tot in de late uurtjes te genieten.

Aangrenzend aan de living bevindt zich via een open verbinding een kantoorruimte, ideaal voor thuiswerken. De keuken is uitgerust met een inbouwkeuken met diverse inbouwapparatuur en biedt ruimte voor een klein gezelschap. Voor grotere diners is de ruimte tussen keuken en de living bijzonder geschikt.

Daarnaast beschikt de begane grond over een bijkeuken met aanrechtblok en achteringang, een extra kamer die lange tijd in gebruik is geweest als praktijkruimte maar geschikt is voor andere doeleinden, een bergruimte/voormalige deel/garage en een tweede bijkeuken met wasmachine-aansluiting.

Eerste verdieping
De overloop geeft toegang tot een ruimte met vaste kastenwand. De royale hoofdslaapkamer beschikt over een vaste kastenwand en een eigen badkamer met ligbad, douche, dubbele wastafel en toilet. Daarnaast zijn er nog drie ruime slaapkamers, ideaal voor gezin, gasten of hobby.

Via een vlizotrap is er nog een royale bergruimte te bereiken.

B&B / recreatieverblijf
Aan de achterzijde van het landhuis staat een vrijstaand bijgebouw, waarin een knusse vakantiewoning met een gebruiksoppervlakte van 50 m2 is gerealiseerd, met op de begane grond de hal met trapopgang, woon/eetkamer incl. open keuken en een badkamer voorzien van douche, toilet en wastafel. Op de verdieping zijn twee slaapkamers. Via een in 2018 verleende omgevingsvergunning is het gebruik als recreatiewoning toegestaan. Een fijne mogelijkheid om uw gasten stijlvol en in volledige privacy te laten logeren. En uiteraard met mogelijkheid voor recreatieve verhuur.
Bijgebouwen
Aan de B&B zit een aanbouw waarin twee paardenstallen zijn gesitueerd en een ruimte voor het stallen van een camper.

Verder zijn op het terrein een garage, carport, tuinhuisje en diverse opslagmogelijkheden voor haardhout aanwezig. Kortom bergruimte in overvloed!

Buiten
De ruimte rondom het woonhuis is ruim en groen met veel privacy. Het perceel wordt omringd door volwassen bomen, de tuin is met zorg aangelegd met veel groene en bloeiende struiken en planten. De grote gazons en diverse terrassen bieden op elk moment van de dag een fijne plek in de zon of juist in de schaduw. De ruime oprit biedt ruim voldoende parkeergelegenheid op eigen terrein.

Dankzij de vrije ligging kijkt u uit over het omliggende landschap en ervaart u een heerlijk gevoel van ruimte. De tuin is keurig aangelegd, maar geeft volop mogelijkheden voor een eigen invulling, zoals het aanleggen van extra terrassen, een moestuin of speelruimte voor de kinderen. De ultieme plek voor natuurliefhebbers en rustzoekers.

Locatie & omgeving
De woning is gelegen in het rustige en groene buitengebied van Neede, in de gemeente Berkelland, omringd door weilanden, houtwallen en landelijke vergezichten, waar rust en ruimte de boventoon voeren. Een omgeving die zich uitstekend leent voor wandelen en fietsen.
Tegelijkertijd bevindt het centrum van Neede zich op korte afstand. Hier vindt u diverse winkels, supermarkten, horeca, scholen en andere dagelijkse voorzieningen. En met enkele autominuten bereikt u ook Diepenheim, ook wel benoemd als Het Stedeke. Een pittoresk plaatsje met gezellige winkeltjes en horeca, omgeven door weelderige landgoederen met historische kastelen. Ook omliggende steden als Hengelo, Enschede, Haaksbergen, Lochem en Zutphen zijn goed bereikbaar, waardoor de locatie een prettige balans biedt tussen landelijk wonen en praktische bereikbaarheid.
Kortom: een heerlijke woonomgeving voor wie vrij en groen wil wonen, zonder het gemak van voorzieningen uit het oog te verliezen.

Kortom, een representatieve vrijstaande woning in een heerlijke groene woonomgeving met alle gemakken dichtbij .

Kenmerken

Zonnepanelen
Overdracht
Vraagprijs
€ 985.000 k.k.
Status
beschikbaar
Aanvaarding
in overleg
Bouw
Soort woonhuis
Landhuis
Soort bouw
vrijstaande woning
Bouwjaar
1978
Energieklasse
C
Soort dak
zadeldak
Slaapkamers
4
Badkamers
2
Oppervlakten en inhoud
Woonoppervlakte
225 m2
Overige inpandige ruimte
45 m2
Gebouwgebonden buitenruimte
18 m2
Externe bergruimte
21 m2
Inhoud
1040 m3
Perceeloppervlakte
6180 m2
faciliteiten
Schuifpui
Glasvezel kabel
Zonnepanelen
Baerz & Co Property Brochure

Brochure

Video’s

Van Herk Makelaars Excellent

Oudehoofdplein 4
3011 TM Rotterdam

xbek@vanherk.nl
+31 102581855

www.vanherk.nl/excellent/

Informatie / bezichtigingsaanvraag

Xandra Bek profile image
Xandra Bek
Real Estate Agent

Een luxe woning kopen in Neede

Neede trekt met haar rustige ligging, verfijnde woonaanbod en persoonlijke service een veeleisende internationale doelgroep. De balans van historie, privacy en cultuur maakt de regio geliefd bij kopers, eigenaars en adviseurs.