Baerz & Co is een landelijk samenwerkingsverband van zorgvuldig geselecteerde boutique luxury makelaars. Samen vormen wij één netwerk, met één gedeeld aanbod. De woningen die u op onze website ziet, zijn afkomstig van alle aangesloten kantoren binnen Baerz & Co. Daardoor is niet ieder object rechtstreeks door ons kantoor in verkoop, maar door een gespecialiseerde collega binnen ons netwerk. Heeft u een woning gevonden die u aanspreekt en wilt u meer informatie? Dan brengen wij u graag persoonlijk in contact met de betreffende verkoopmakelaar, zodat u direct en zorgvuldig wordt begeleid.

BERGSCHENHOEK
Van Vredenburchlaan 71 - 2661 HE
Nederland

€1.199.500 k.k.
Woonoppervlakte
223m2
Perceeloppervlakte
445m2
Slaapkamers
5

Omschrijving

Deze gemoderniseerde, vrijstaande woning met oprit, carport en garage, ligt op een perceel van maar liefst 445 m2. De woning is op de begane grond uitgebouwd over de gehele achterzijde met, als extraatje, een aangebouwde veranda van ca. 17 m2 met open haard, waar je goed beschut maar toch een beetje buiten kunt genieten van een drankje bij het vuur. Dit huis is ronduit smaakvol afgewerkt en tot in de puntjes verzorgd!

De ruime living, de complete woonkeuken met kookeiland en beschikt over 5 slaapkamers met nog een aparte werk/tv-kamer op de begane grond, dat maakt deze woning geschikt voor een groot gezin waar ieder zijn eigen plekje heeft.

In de nabije omgeving bevinden zich het Annie M.G. Schmidtpark, park ‘’de Leeuwenkuil’’ , basisscholen, middelbare scholen, speeltuin De Kievit en natuurspeelplaats Tuin van Floddertje. Diverse uitvalswegen en openbaar vervoer naar de grote steden (A12, A13, N209, N470, N471 en de RandstadRail) zijn eveneens op zeer korte afstand gelegen.

Kortom; de perfecte combinatie van een prachtig woonhuis met alles in de buurt!

Indeling

Voortuin:
Oprit met plek om twee auto’s te parkeren waarvan 1 onder de glazen carport kan staan. Met een elektrische roldeur toegang tot de verwarmde garage.

Keuken:
Entree van de woning zit aan de zijkant. Hal met toilet, meterkast met glasvezelaansluiting, diepe bergkast onder de trap en trapopgang naar 1e verdieping.
Binnenkomst in de open keuken met kookeiland en een uitgebreide kastenwand met apparatuur van Siemens. De volgende apparaten zijn hierin verwerkt: koffiezetapparaat, combi oven/magnetron, en een koel-vriescombinatie. In het kookeiland zitten naast de spoelbak en veel berglades, een vaatwasser, 5 pits gaskookplaat met daarboven een geïntegreerde afzuigkap. De in het dak verwerkte lichtstraat zorgt voor een prettige, natuurlijke lichtinval.

Woonkamer en eetkamer:
In het verlengde van de keuken bevindt zich de eetkamer met een extra keukenblok met onder andere een extra koelkast en een klimaatkast. Vanuit de eetkamer kom je via openslaande deuren in de veranda met openhaard en is er een deur naar de garage. Ook geven de openslaande deuren toegang geven tot de achtertuin.

Aan de voorzijde, grenzend aan de woonkamer, zijn er prachtige en-suite deuren naar de werk-/ tv kamer.

De gehele begane grond inclusief de veranda is voorzien van een houtlook tegelvloer met vloerverwarming.

Tuin:
De achtertuin is voorzien van een breed terras met centraal een heerlijke zitplek onder de natuurlijke parasols in de vorm van een viertal dakplatanen. Aan de waterkant is een houten vlonder terras met Jacuzzi.
Aan de zijkant van de woning bevindt zich een houten schuur en een afsluitbare poort. De tuin is gelegen op het zuidwesten.

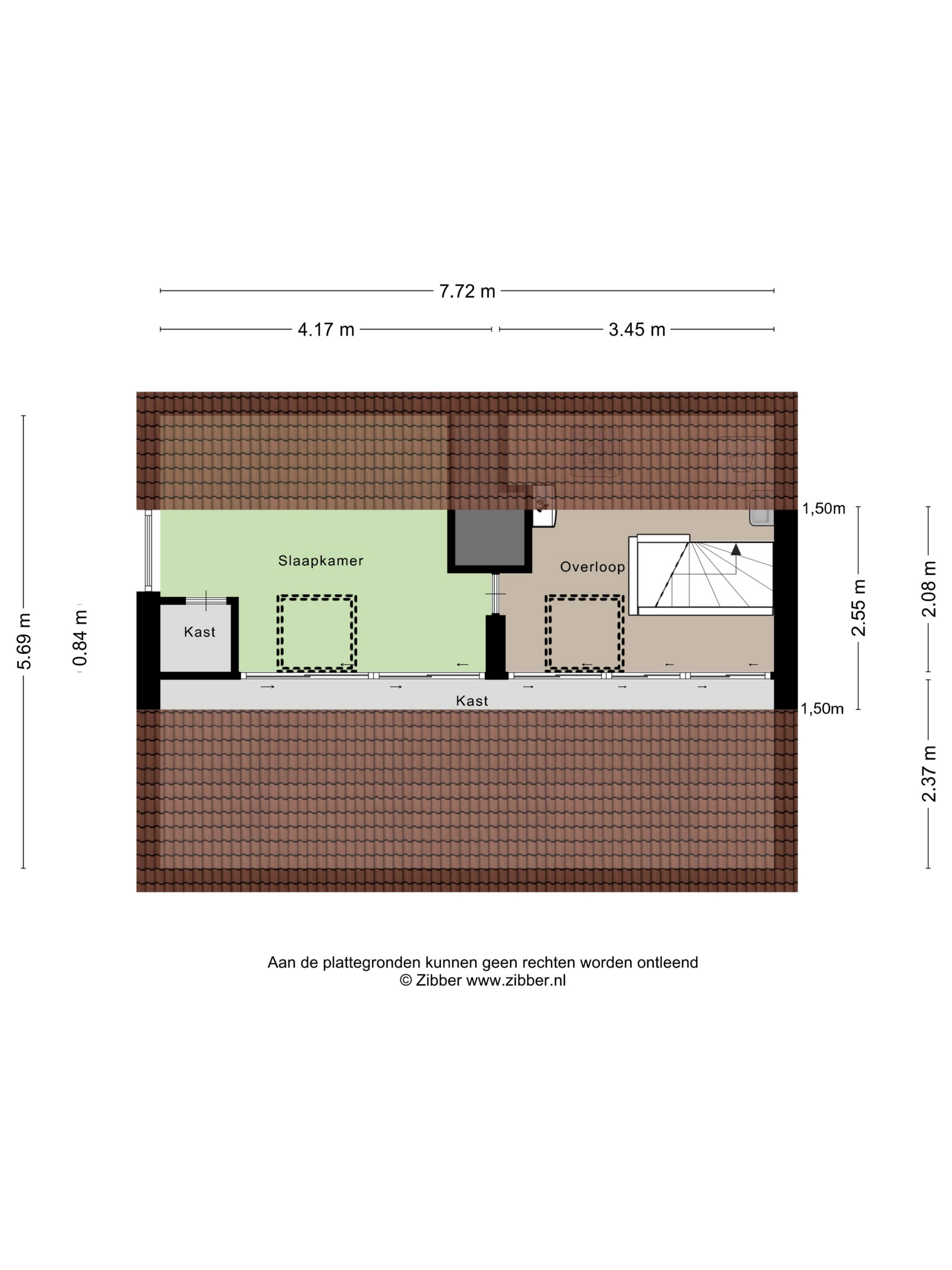
1e verdieping:
Overloop met laminaatvloer en toegang tot de slaapkamers, badkamer en trap naar 2e verdieping en bergkast.
Slaapkamer aan de voorkant met dakkapel.
Slaapkamer aan de achterkant voorzien van airco en dakkapel met elektrische rolluiken. Deze kamer heeft een overzichtelijke inloopkast met raam.
Slaapkamer aan de achterkant met elektrische rolluik.
Slaapkamer, deze slaapkamer bevindt zich boven garage en heeft een houten bed-meubel met vaste kast.

De badkamer is voorzien van een ligbad, toilet, douche en dubbele wastafel.

2e verdieping:
Ruime voorzolder met dakraam, wastafel, aansluiting voor de wasmachine, wasdroger en opstelplaats cv-ketel.
Slaapkamer met dakraam en zijraam en vaste kast. Extra bergruimte is er te vinden achter knieschotten onder het schuine dak.

Pluspunten van het huis:
- Vrijstaande woning met een speelse indeling, 5 slaapkamers en een extra werkkamer.
- Gelegen in een rustige straat, vlakbij het centrum van Bergschenhoek.
- Zonnige tuin op het zuidwesten.
- Inpandige garage.
- Ruime living, keuken en eetkamer met sfeervolle veranda met openhaard.
- Oplevering in overleg, conform Lijst van zaken.

In de koopovereenkomst worden de volgende extra clausules opgenomen:
- Bij deze woning (ouder dan 30 jaar) is de ouderdomsclausule van toepassing.
- Bij deze woning (gebouwd voor 1993) is de asbestclausule van toepassing.

Wij nodigen je van harte uit om deze fraaie villa met eigen ogen te bewonderen.

De teksten en impressies zijn bedoeld om een goede indruk te geven van het object. Aan de inhoud ervan is de grootst mogelijke zorg besteed. Desondanks is alle informatie nadrukkelijk onder voorbehoud. Hieraan kunnen geen rechten worden ontleend.

Wij zijn de makelaar van de verkoper. Wij adviseren je om jouw eigen makelaar mee te nemen voor het behartigen van jouw belangen bij de aankoop van jouw toekomstige huis!

Koopovereenkomst pas rechtsgeldig na ondertekening:
Een mondelinge overeenstemming tussen de particuliere verkoper en de particuliere koper is niet rechtsgeldig. Met andere woorden: er is geen koop. Er is pas sprake van een rechtsgeldige koop als de particuliere verkoper en de particuliere koper de koopovereenkomst hebben ondertekend. Dit vloeit voort uit artikel 7:2 Burgerlijk Wetboek. Een bevestiging van de mondelinge overeenstemming per e-mail of een toegestuurd concept van de koopovereenkomst wordt overigens niet gezien als een 'ondertekende koopovereenkomst'.

Toelichtingsclausule Meetinstructie:
De woning is conform de Branchebrede Meetinstructie (BBMI) opgemeten. De Meetinstructie is bedoeld om een meer eenduidige manier van meten toe te passen voor het geven van een indicatie van de gebruiksoppervlakte. De Meetinstructie sluit verschillen in meetuitkomsten niet volledig uit, door bijvoorbeeld interpretatieverschillen, afrondingen of beperkingen bij het uitvoeren van de meting.

Kenmerken

Alarm system
Air conditioning
Overdracht
Vraagprijs
€ 1.199.500 k.k.
Status
beschikbaar
Aanvaarding
in overleg
Bouw
Soort woonhuis
Villa
Soort bouw
vrijstaande woning
Bouwjaar
1976
Energieklasse
C
Soort dak
samengesteld dak
Slaapkamers
5
Badkamers
1
Oppervlakten en inhoud
Woonoppervlakte
223 m2
Overige inpandige ruimte
14 m2
Gebouwgebonden buitenruimte
36 m2
Externe bergruimte
3 m2
Inhoud
878 m3
Perceeloppervlakte
445 m2
faciliteiten
Mechanische ventilatie
Alarminstallatie
Airconditioning
Jacuzzi
Rookkanaal
Dakraam
Aan water
Aan rustige weg
In centrum
In woonwijk
Baerz & Co Property Brochure

Brochure

Video’s

Plattegronden

Van Herk Makelaars Excellent

Oudehoofdplein 4
3011 TM Rotterdam

xbek@vanherk.nl
+31 102581855

www.vanherk.nl/excellent/

Informatie / bezichtigingsaanvraag

Xandra Bek profile image
Xandra Bek
Real Estate Agent

Een luxe woning kopen in Bergschenhoek

Bergschenhoek biedt een verfijnde gemeenschap met op maat gemaakte voorzieningen, groene landschappen en internationale oriëntatie – de ideale setting voor wie streeft naar hoogwaardig wonen en blijvende waarde.