Ons kantoor is lid van Baerz & Co Luxury Homes; een internationaal platform dat exclusieve woningmakelaars met elkaar verbindt. Neem contact op met ons secretariaat voor meer informatie over het landelijke aanbod, waarvan u hieronder een selectie kunt bekijken.

Grachtenpand for sale in HARLINGEN

HARLINGEN Noorderhaven 102 - 8861 AR The Netherlands


Ellen Schoneveld profile image
Ellen Schoneveld
Real Estate Agent
+31 582300623
info@villafriesland.nl

Villa Friesland Makelaardij
Lange Marktstraat 1
8911 AD Leeuwarden
NETHERLANDS
+31 (0)58 - 23 006 23
www.villafriesland.nl
info@villafriesland.nl

Living area
208m2
Plot size
148m2
Bedrooms
5

Description

Monumental Grandeur with Private City Garden and Panoramic Harbour Views

A truly enchanting place to live, nestled in a city where centuries of history are not only visible but palpable.** Along the historic tidal harbour of Noorderhaven, the past comes to life in a setting that is both authentic and breathtaking. This is not just a home – it’s a way of life, a place where you live *within* your own story. The harbour opens directly into the UNESCO World Heritage Wadden Sea, making every view a masterpiece of nature and maritime history.

Harlingen, often referred to as ‘Little Amsterdam’, offers a unique combination of charm and accessibility – just an hour’s drive from the capital via the iconic Afsluitdijk.

National Monument Dating Back to 1639

A Classic Canal Residence Brimming with Character**
The distinguished façade with its golden lion heads, central risalit, and six-pane sash windows exudes timeless elegance. Inside, a wealth of original details awaits: high ornamental ceilings, wide antique wooden floors, refined paneling, and marble fireplaces. Spread across four spacious floors are nine generously sized rooms and three stylish bathrooms – a remarkable blend of practicality and grandeur.

Light, Views and Privacy

The bel étage includes an inspiring (home) office with captivating views of the harbour. The elegant garden room – currently used as the master suite with en-suite bathroom – opens out through French doors to a south-facing walled city garden: a rare haven of peace and privacy in the heart of town.

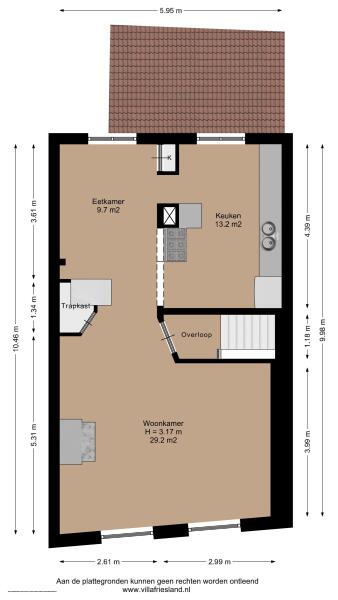
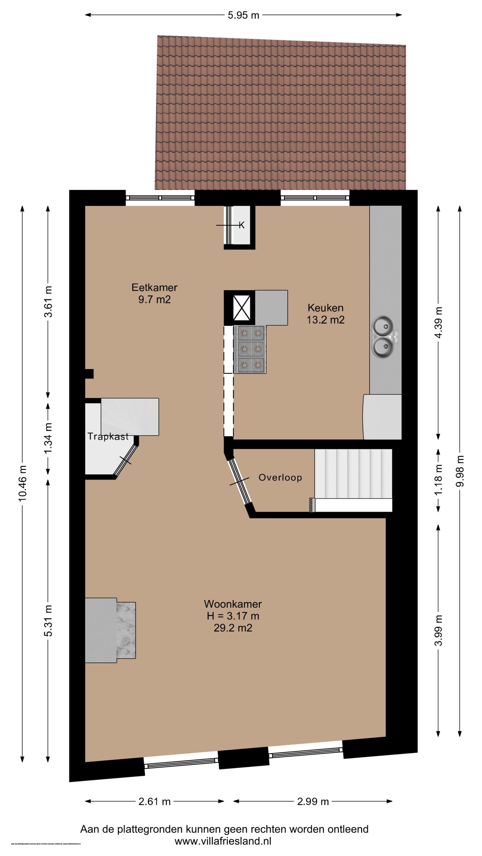
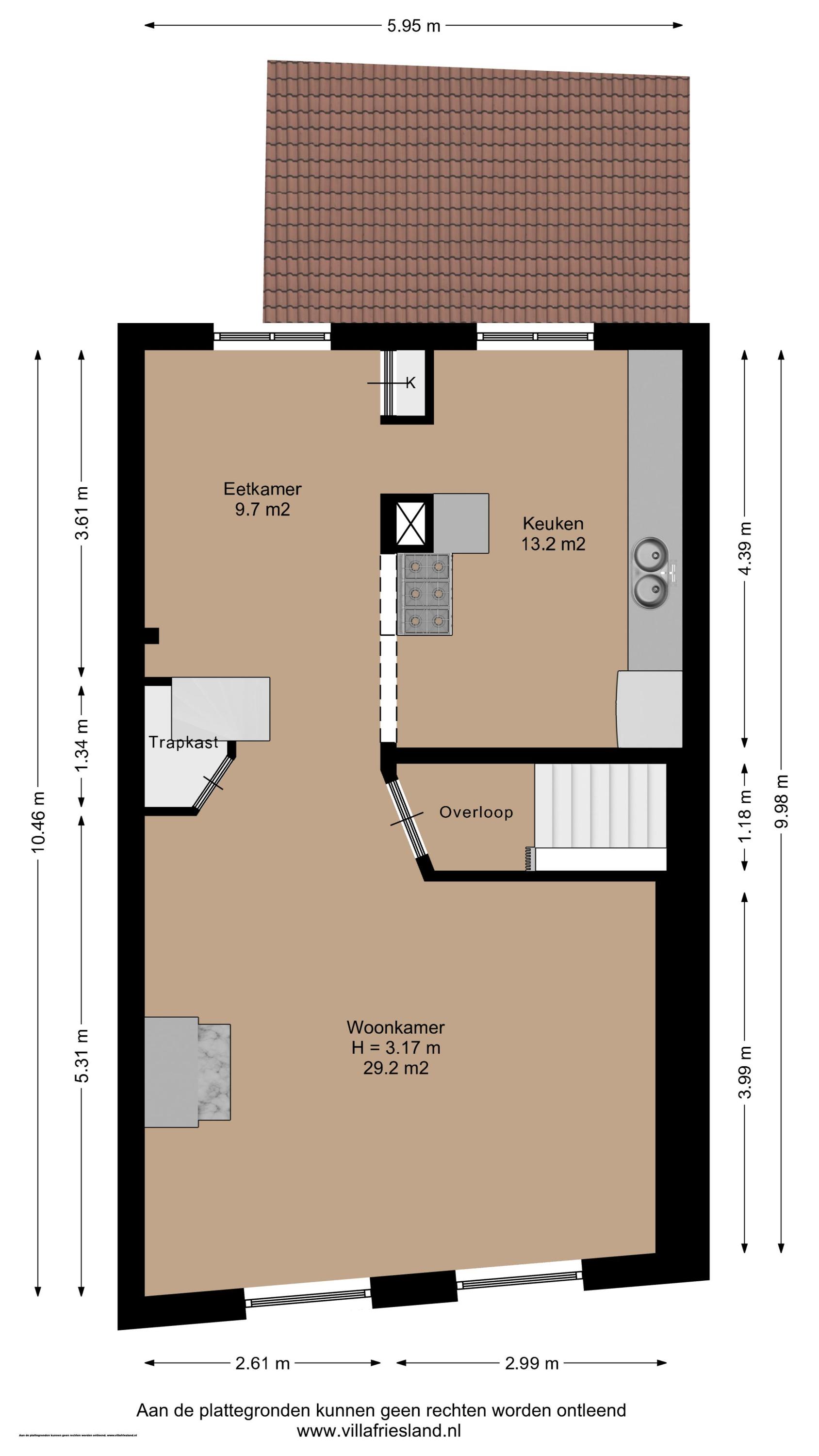
The first floor features an impressive living room with floor-to-ceiling windows, original sliding mechanisms, and sweeping views of the harbour, the historic town hall, and the Leeuwenbrug. With the ebb and flow of the tides and passing yachts and sailboats, the scene is ever-changing – like a living painting. At the rear, a charming dining room and authentic kitchen await, complete with traditional Frisian tiles and granite countertops.

Spacious and Elegant Sleeping Quarters

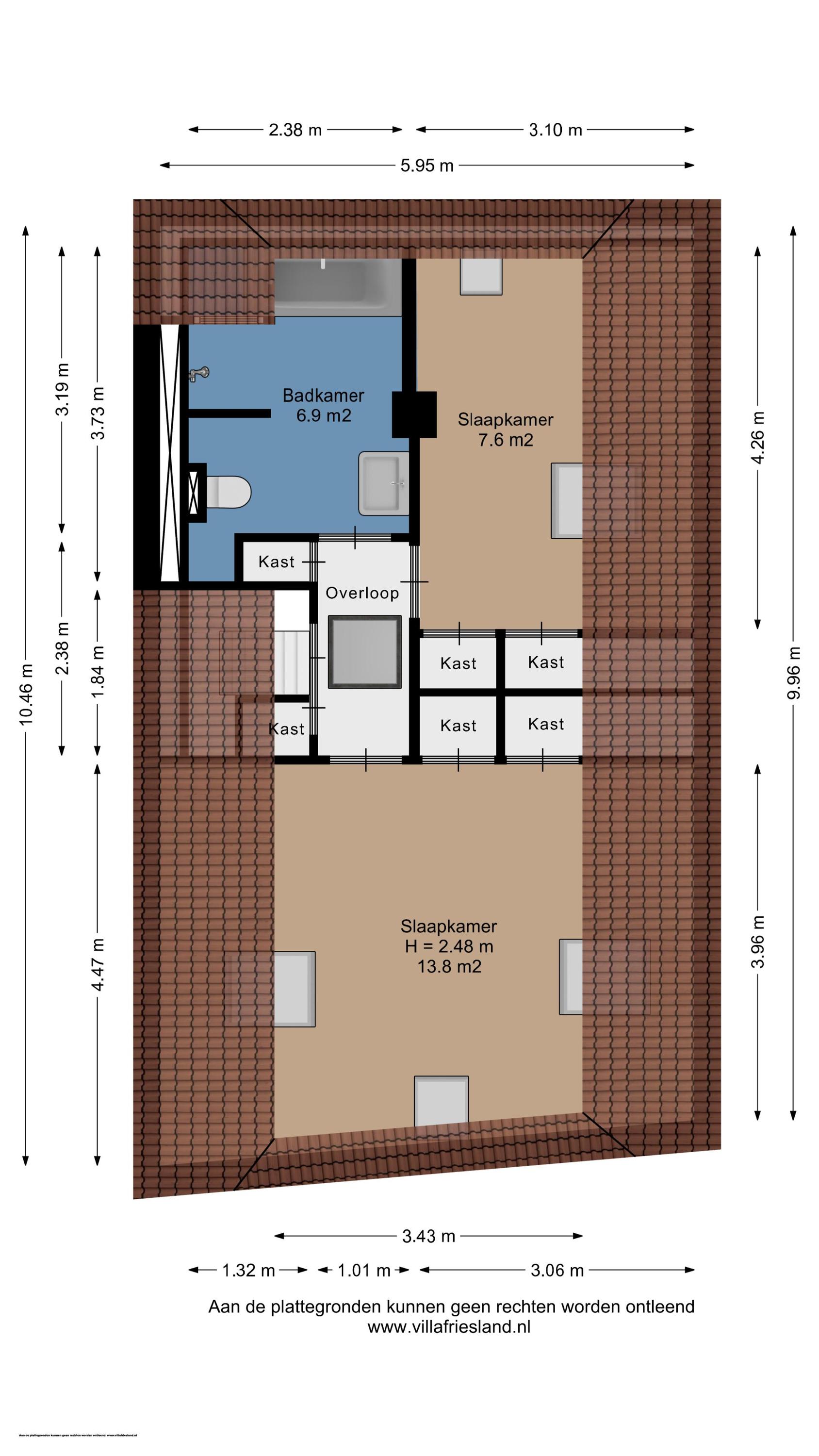
In addition to the en-suite on the bel étage, the third floor offers two large bedrooms and a luxurious bathroom. The newly finished roof with exposed beams adds both character and warmth. The souterrain provides extra living space with a cosy guest bedroom, an en-suite bathroom, and a walk-in closet – ideal for guests or an au pair.

Where History, Space and Comfort Converge

• Listed national monument with authentic period details
• Impeccably maintained – technical survey available, no remarks
• Exterior painted in 2023; insulated and renewed roof in 2015
• Five spacious bedrooms, three elegant bathrooms
• Secluded south-facing city garden
• Potential for a private mooring directly in front of the house
• Parking permits available (up to five)
• Amsterdam reachable within one hour

Experience Elegant Living at Noorderhaven

A rare opportunity to own a residence where heritage, comfort, and space come together in perfect harmony. This property must be seen and *felt* to be truly appreciated. Allow yourself to be inspired by the grandeur, the views, and the unique ambiance of this extraordinary canal house. We warmly invite you to experience it in person – don’t hesitate to contact us for a private viewing.

HARLINGEN
Situated along the Wadden Sea, Harlingen – affectionately known as “Little Amsterdam” – is Friesland’s most beautiful harbour town, home to no fewer than 600 listed monuments. Here, you live by the sea with its ever-changing skies, rich biodiversity, and close proximity to the islands and beaches. Everything you need is within easy reach: charming restaurants, boutique shops, schools, medical facilities, and a train station.

The city's nautical roots date back to the early 13th century and continue to shape the vibrant harbour atmosphere today, attracting international visitors, sailors, and Wadden Sea enthusiasts alike. Thanks to its location just north of the Afsluitdijk, Amsterdam is only an hour away.

DISCLAIMER
This information has been compiled with care and is partly based on information provided by the seller and/or third parties. While every effort has been made to ensure accuracy, no rights can be derived from its contents, including texts, attachments, floorplans, or measurements. Surface areas have been measured in accordance with the NEN 2580 measurement standard; deviations may occur. This offer is non-binding and intended as an invitation to make an offer. For properties older than 25 years, an age clause and, if applicable, an asbestos clause will be included in the purchase agreement.

Features

Transfer of ownership
price
€ 1.150.000 k.k.
Status
beschikbaar
Acceptance
in overleg
Construction
Kind of house
Grachtenpand
Building type
tussenwoning
Roof type
samengesteld dak
Bedrooms
5
Bathrooms
3
Surface Areas And Volume
Living area
208 m2
Other indoor space
0 m2
Volume in cubic meters
762 m3
Plot size
148 m2
facilities
Mechanische ventilatie
Tv kabel
Rookkanaal
Dakraam
Glasvezel kabel
Natuurlijke ventilatie
Aan water
In centrum
Vrij uitzicht
Aan vaarwater
Baerz & Co Property Brochure

Brochure

Information / Viewing request

Videos

Photos

Floor Plans