Ons kantoor is lid van Baerz & Co Luxury Homes; een internationaal platform dat exclusieve woningmakelaars met elkaar verbindt. Neem contact op met ons secretariaat voor meer informatie over het landelijke aanbod, waarvan u hieronder een selectie kunt bekijken.

Dubbel benedenhuis for sale in AMSTERDAM

AMSTERDAM Warmondstraat 85 H - 1058 KS The Netherlands


Steijn Schothorst profile image
Steijn Schothorst
Real Estate Agent
+316 53436695
info@heerenmakelaars.nl

Heeren Makelaars
Stadionweg 75
1077 SE Amsterdam
NETHERLANDS
+31 0204702255
www.heerenmakelaars.nl
info@heerenmakelaars.nl

Living area
120m2
Plot size
122m2
Bedrooms
3

Description

Warmondstraat 85 hs, 1058 KS Amsterdam

Bright and spacious double ground-floor apartment (approx. 120 m²) located on Warmondstraat! This apartment features a generous living room with an open kitchen and beautiful rear extension, three well-proportioned bedrooms, a modern bathroom, and a lovely garden of approx. 32 m² with a storage shed. Moreover, the property is situated on freehold land—so no leasehold!

Location & Accessibility

Warmondstraat 85 hs is located in the popular Hoofddorppleinbuurt in Amsterdam-Zuid: a neighborhood that perfectly balances tranquility, accessibility, and vibrancy. The street itself is quiet and child-friendly, while just around the corner you’ll find the buzz of the city. The area is home to numerous trendy cafés and restaurants, such as local favorites like Drovers Dog, Lokaal van de Stad, Vlaamsch Broodhuys, and Café Schinkelhaven. Whether you're looking for a cozy brunch spot, drinks with friends, or a quality espresso, everything is within walking distance.

For those who enjoy greenery and the outdoors, both Vondelpark and Rembrandtpark are just a few minutes away by bike. The nearby Westlandgracht also offers a peaceful walking path along the water—ideal for a morning run, a dog walk, or a summer picnic.

In terms of accessibility, the location is excellent. The A10 ring road is just minutes away via exit S106, and various tram and bus lines (such as lines 2 and 15) provide quick connections to Amsterdam city center or Lelylaan Station. Zuid Station and Schiphol Airport are also easily reachable by public transport or bike. Parking is available through the permit system of the Zuid district. Currently, there is a relatively short waiting time for a permit, and there is usually ample parking available in the street or nearby. It's also possible to rent a parking space in nearby parking garages.

Layout

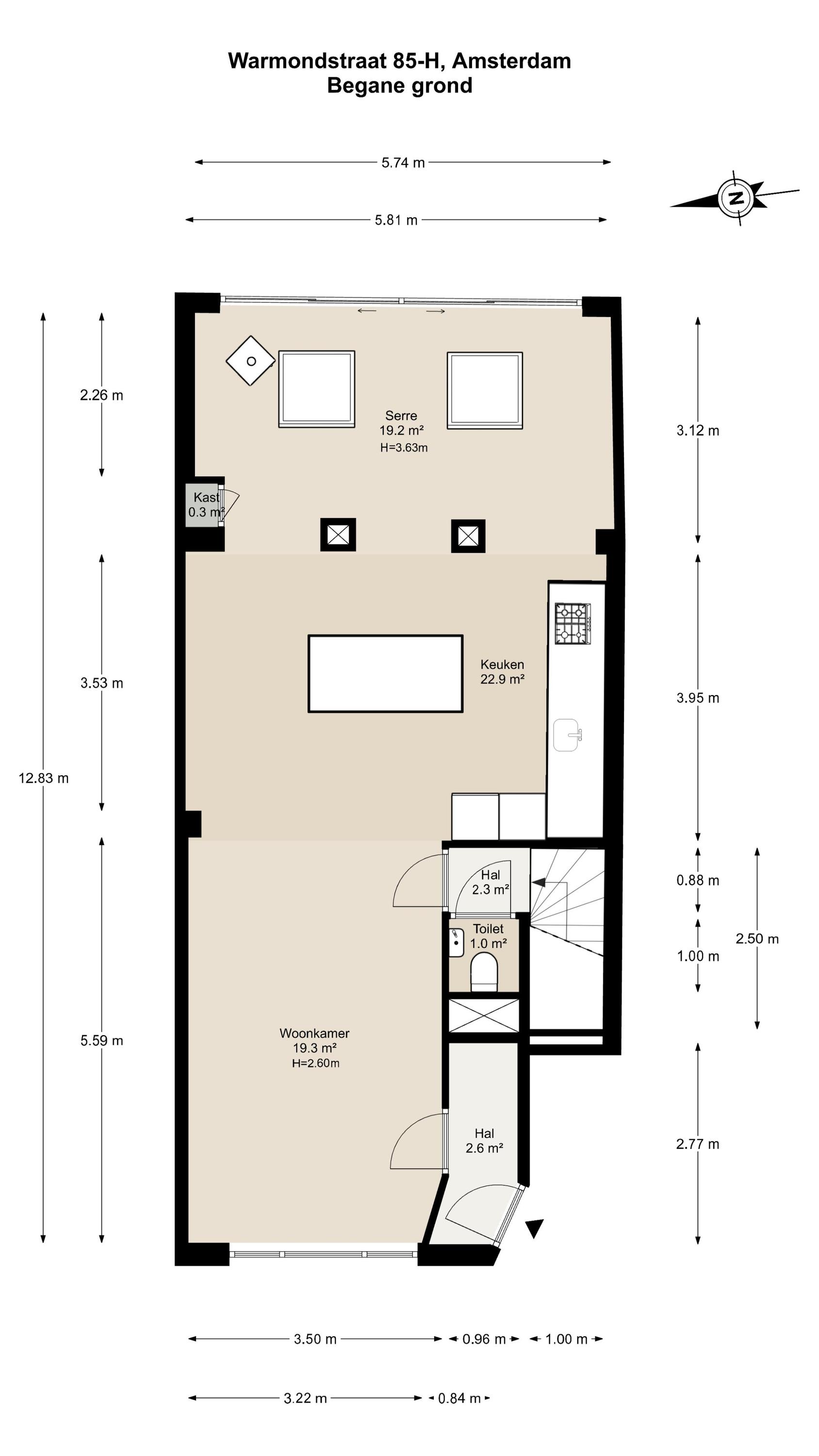
Ground Floor

Upon entering, you step into a vestibule that provides access to the rest of the apartment.

At the front of the property, you'll find the spacious living room, easily large enough to accommodate a comfortable seating area. Centrally located is the open kitchen, featuring a stylish cooking island and cozy bar area. The kitchen is equipped with high-quality built-in appliances, including a 4-burner induction hob with integrated extractor, dishwasher, fridge/freezer combination, combi-oven, and a Quooker.

A few steps down, you enter the recently constructed extension with skylights, which allow plenty of natural light to flood the space. This area currently serves as an atmospheric dining room, with an additional seating area arranged around a modern gas fireplace. Floor-to-ceiling sliding glass doors lead to the beautifully landscaped east-facing garden of approx. 32 m², complete with a practical storage shed.

Basement Level (Souterrain)

A centrally located staircase in the living room leads to the basement level. Here, you'll find three well-sized bedrooms and a modern bathroom. The two rear-facing bedrooms are perfect as children's rooms or home offices, while the spacious primary bedroom is located at the front.

The bathroom is stylishly finished and equipped with a generous bathtub, walk-in shower, double sink with vanity, and toilet. In the hallway, there is also a convenient built-in closet and a separate utility room with connections for a washing machine and dryer.

Key Features

- Apartment size approx. 120 m² (measured in accordance with NEN2580)
- Three well-proportioned bedrooms
- Lovely east-facing garden (approx. 32 m²) with storage shed
- Modern rear extension with excellent natural light
- Energy label A
- Healthy and active Homeowners Association (VvE), multi-year maintenance plan (MJOP) available
- VvE servicecosts € 135,- per month
- Located on freehold land (no ground lease!)
- Delivery in consultation

This information has been compiled with the utmost care. However, we accept no liability for any incompleteness, inaccuracies, or consequences thereof. All dimensions and surface areas are indicative. Buyers must conduct their own due diligence on matters of importance. The broker acts on behalf of the seller. We recommend engaging a qualified (NVM) broker to guide you through the purchase. If you have specific requirements regarding the property, please inform your purchasing agent in time and conduct independent investigation. If you do not engage a professional representative, the law deems you competent enough to oversee all important matters yourself. NVM conditions apply.

Features

Transfer of ownership
price
€ 1.250.000 k.k.
Status
verkocht onder voorbehoud
Acceptance
in overleg
Construction
Kind of house
Dubbel benedenhuis
Building type
appartement
Construction period
1931
Energy rating
A
Roof type
samengesteld dak
Bedrooms
3
Bathrooms
1
Surface Areas And Volume
Living area
120 m2
Other indoor space
0 m2
External storage space
5 m2
Volume in cubic meters
428 m3
Plot size
122 m2
facilities
Tv kabel
Natuurlijke ventilatie
Aan bosrand
Aan water
Aan park
Aan rustige weg
In woonwijk
Aan vaarwater
Baerz & Co Property Brochure

Brochure

Information / Viewing request

Videos

Photos

Floor Plans