Eerste van der Helststraat 1D, 1073 AA Amsterdam
Located in the popular Amsterdam Pijp district, we proudly offer this unique ground-floor duplex (approx. 219 m²), beautifully renovated under architectural supervision and with exceptional taste. Within walking distance, you'll find Museumplein and numerous charming shops, restaurants, and cafés.
Location & Accessibility
De Pijp is known as a vibrant, youthful neighborhood with a charming architectural style from the late 19th and early 20th centuries. The area boasts countless cafés and restaurants, as well as the lively Albert Cuyp Market, open six days a week. This apartment is ideally located between Ferdinand Bolstraat and Ruysdaelkade, with the Museum Quarter (Museumplein) and the Duivelseiland neighborhood just a short stroll away. For relaxation or recreation, both Sarphatipark and Vondelpark are nearby. In addition to its lively atmosphere, De Pijp is well-connected via public transport, with multiple tram lines and the North/South metro line within easy reach.
Layout
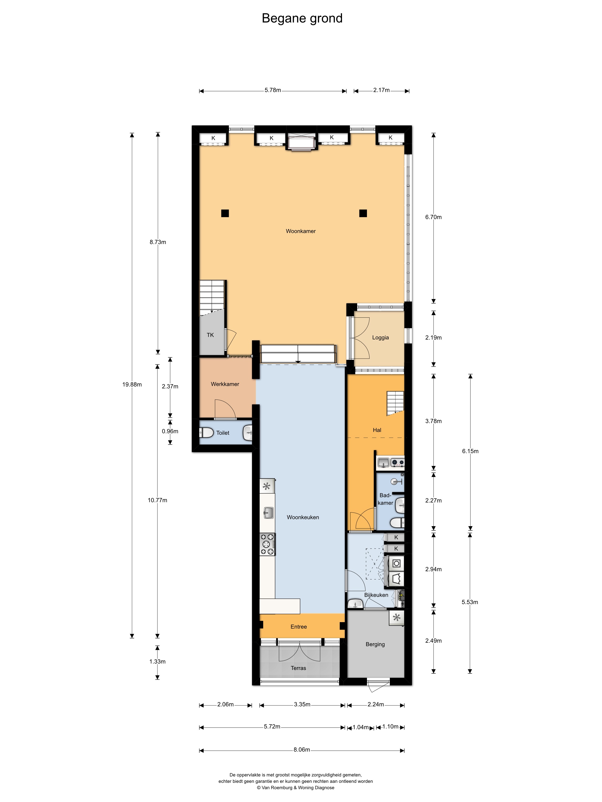
Ground Floor
Through an elegant entrance, you step into the spacious and stylishly designed open-plan kitchen. The kitchen is equipped with various built-in appliances, including a dishwasher, gas stove with oven, and a Quooker. The varying ceiling heights in different areas add a playful and dynamic touch to the home. Between the kitchen and the sitting room, there is a study/office space and a large toilet. The living room features a beautiful herringbone parquet floor, custom-built cabinetry, and a projector with a screen. To complete the cozy ambiance, a large gas fireplace has been installed. Both the kitchen and a separate entrance from the street provide access to the guest quarters, which include an additional kitchen, bathroom, and laundry facilities. This space is perfect for accommodating guests or an au pair.
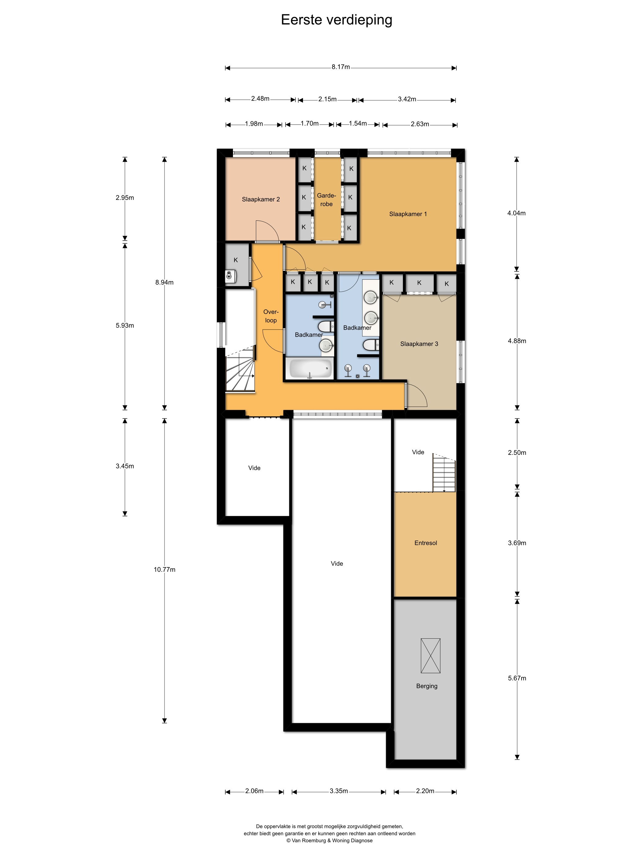
First Floor
The cohesive style from the ground floor continues upstairs, with a keen eye for detail and high-quality finishes. This level includes three spacious bedrooms, one of which is the master bedroom, as well as two bathrooms featuring amenities such as a bathtub and a rain shower for two. The master bedroom boasts a walk-in closet and built-in audio speakers.
Eerste Van der Helststraat:
Named after Bartholomeus van der Helst (1612–1670), a painter renowned for his militia and regent group portraits. (Source: Amsterdam City Atlas)
Key Features:
- Duplex ground-floor apartment of approx. 219 m² (NEN2580 measurement report available);
- Thoroughly renovated and refurbished in 2016–2017;
- Freehold property;
- Guest quarters with a private entrance;
- Small homeowners’ association (VvE) with 4 members, self-managed;
- Monthly service charges: €186.33;
- Fully double-glazed;
- Equipped with an alarm system;
- Electric roller shutter at the front;
- Cozy gas fireplace;
- Delivery in consultation;
- Parking via permit system.
This information has been compiled with the utmost care. However, no liability is accepted for any incompleteness, inaccuracies, or otherwise, nor for the consequences thereof. All stated dimensions and surface areas are indicative. Buyers are responsible for conducting their own due diligence regarding matters of importance to them. The broker represents the seller's interests. We recommend engaging a professional (NVM) broker to assist you in the purchasing process. If you have specific requirements for the property, please communicate them promptly to your purchasing agent and conduct independent research. If you choose not to engage a professional representative, you are considered legally competent to assess all relevant matters. NVM terms and conditions apply.