Ons kantoor is lid van Baerz & Co Luxury Homes; een internationaal platform dat exclusieve woningmakelaars met elkaar verbindt. Neem contact op met ons secretariaat voor meer informatie over het landelijke aanbod, waarvan u hieronder een selectie kunt bekijken.

AMSTELVEEN
Charlotte Van Montpensierlaan 44 - 1181 RR
Netherlands

Xandra Bek profile image
Xandra Bek
Real Estate Agent
€1,950,000 k.k.
Living Area
203m2
Plot Size
226m2
Bedrooms
4

Description

Exclusive Semi-Detached Design Residence with Piet Boon Signature, Premium Finishes and Sustainable Installations in the Highly Sought-After Elsrijk, Amstelveen!

Welcome to this exceptionally stylish home offering 203 m² of living space, where modern design meets ultimate comfort. Fully renovated in 2022, this property stands out with its unparalleled craftsmanship, bespoke features, and a thoughtfully designed layout that elevates everyday living. Every detail exudes quality, tranquility, and refinement—perfect for the discerning buyer unwilling to compromise. With sustainable installations and an A++ energy label, the home is entirely future-proof. The unique location, set along a leafy, water-lined avenue, further enhances its appeal.

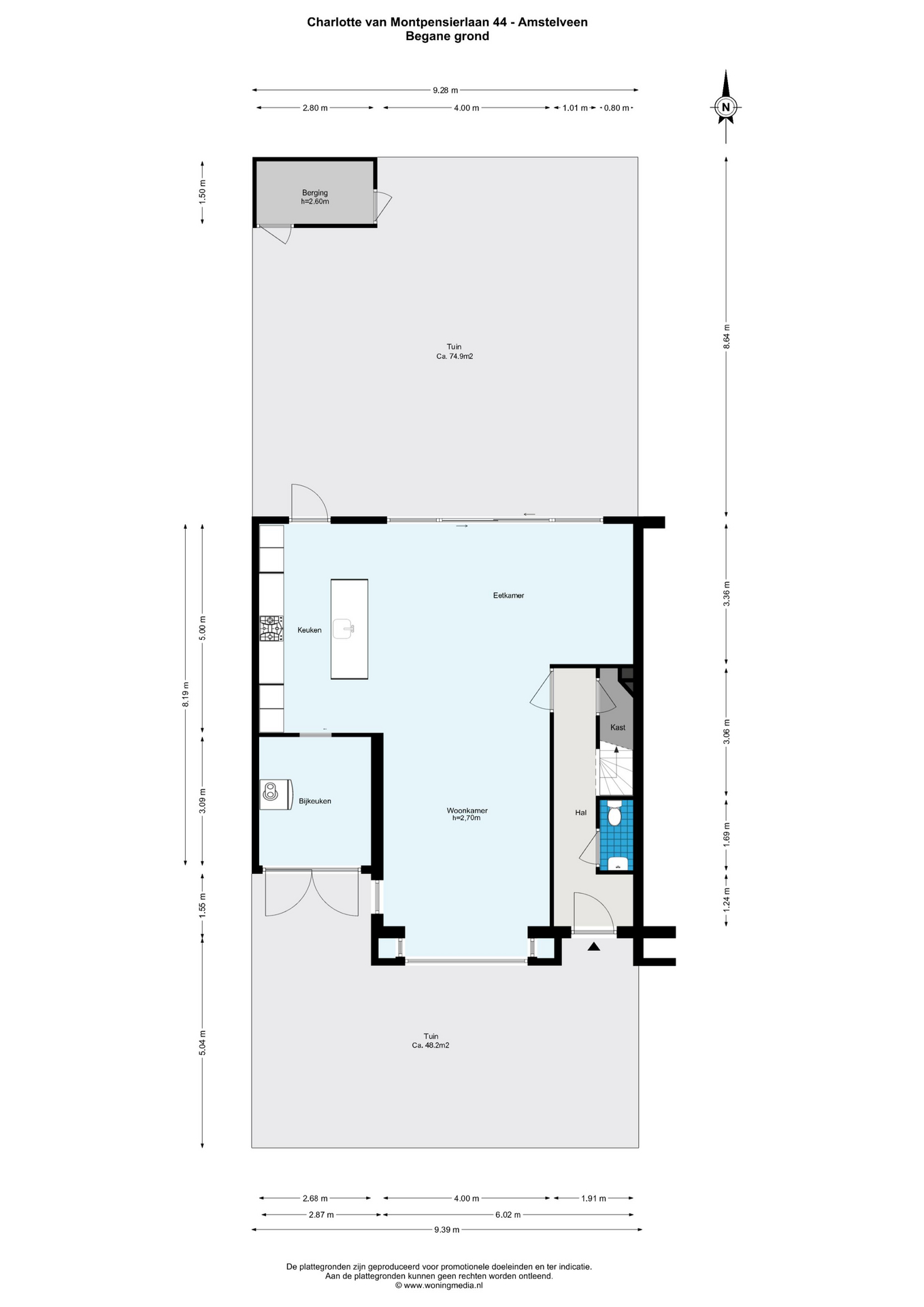
A Stylish Entrance
The front garden radiates elegance, with a private driveway secured by an anthracite-grey electric sliding gate. Upon entry, it becomes immediately clear that every detail has been carefully considered. The steel front door—an anthracite-grey classic, adapted to modern insulation standards—sets the tone for what lies inside. The hallway features a custom-built wardrobe with light wood veneer doors, a designer toilet with Piet Boon COCOON faucet, and an oak staircase with steel railings. From here, tall pivot doors lead you into the living room.

Distinctive Living
The living room forms the beating heart of this residence. A striking gas fireplace, finished floor-to-ceiling in grey béton ciré, serves as a dramatic centerpiece. A bespoke TV cabinet and grey-washed oak parquet flooring create a timeless and inviting atmosphere. Expansive windows provide abundant natural light and seamless connection to the garden, while the generous width of the space adds to the sense of openness. From the sofa, you enjoy serene water views, and the considerable distance to neighboring properties ensures excellent privacy.

Culinary Delight
Adjacent to the living room is the dining area, with sliding doors opening directly onto the terrace. A custom Piet Boon wooden cabinet, including a Liebherr wine climate cabinet, makes this the perfect setting for extended dinners and intimate gatherings. The adjoining kitchen is a masterpiece of both design and functionality, anchored by a striking marble island. Outfitted with premium Miele appliances—including an oven, combi-oven/microwave, fridge-freezer, and a Quooker Cube (providing instant boiling, chilled, and sparkling water)—the kitchen is as practical as it is refined. The wall unit, with six wide soft-close drawers in light wood veneer, offers abundant storage while enhancing the serene design.

Practical & Future-Proof
The utility room provides additional storage and accommodates the technical installations, including underfloor heating and a heat recovery ventilation system (WTW). A practical, forward-looking solution that combines comfort with sustainability.

Outdoor Living in Style
The rear garden features weathered hardwood decking, lush hydrangeas, and green ivy, creating a private oasis for relaxation. A storage shed provides additional space, with a separate section for the heat pump. The garden also offers secure access to the back lane—ideal as a safe shortcut for children.

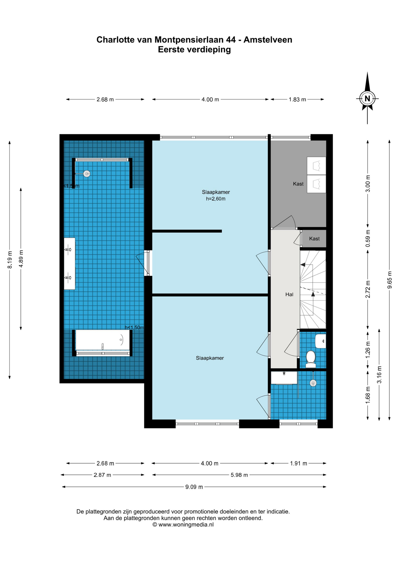
First Floor: A Luxury Suite
The master bedroom is a true retreat, featuring a built-in headboard with taupe leather bedside tables and copper lamps for a hotel-worthy feel. Double-layered window treatments—sheer and blackout—offer maximum flexibility. The spacious walk-in closet, complete with drawers, shoe racks, and hanging sections, leads directly into the ensuite bathroom.
The master bathroom, designed by Piet Boon, is finished in exclusive materials: a double sink in Portuguese marble with COCOON built-in faucets, a béton ciré bathtub, and a large walk-in rain shower with glass door all combine to create a spa-like experience at home.
Also on this floor is a second bedroom with custom cabinetry and a second bathroom in the same premium style, featuring large-format tiles, built-in faucets, and a modern vanity.

Second Floor: Comfort & Flexibility
The top floor offers two further bedrooms, both with bespoke cabinetry. One of the rooms includes a specially designed built-in closet with a child-friendly layout. A third bathroom—again in Piet Boon design—features 120x120 cm tiles, built-in faucets, and a sleek vanity.

Additional Amenities
The first floor also includes a separate laundry room, smartly designed to accommodate a washing machine, dryer, ironing board, and drying rack. In the rear garden, an additional storage shed (1.70 x 3 m) and practical built-in cupboards provide even more functionality.

Sustainability & Comfort
This home combines luxury with future-ready living. Equipped with a heat pump, underfloor heating, heat recovery ventilation (WTW), and air conditioning, it offers optimal indoor climate control, low energy costs, and a high degree of sustainability. With an A++ energy label, the property meets the highest standards of energy efficiency.

A Unique Opportunity
This 203 m² home, fully renovated in 2022, is far from ordinary—it is a statement of style, comfort, and quality. The combination of Piet Boon design, premium materials, and advanced sustainable technology makes this a residence designed to last for generations. An exclusive opportunity for buyers seeking a home where everyday living transforms into pure luxury.

Key Features
- approx. 203 m² living space
- plot size approx. 226 m²
- high-end renovation completed in 2022
- piet Boon signature design
- highly sustainable, Energy Label A++
- front garden with private driveway and electric gate
- prime location overlooking water

Features

Solar panels
Alarm system
Air conditioning
Transfer of ownership
Asking Price
€ 1.950.000 k.k.
Status
verkocht onder voorbehoud
Acceptance
in overleg
Construction
Kind of house
Eengezinswoning
Building type
twee onder een kapwoning
Construction period
1938
Energy rating
A++
Roof type
zadeldak
Bedrooms
4
Bathrooms
3
Surface Areas And Volume
Living Area
203 m2
Other indoor space
0 m2
External storage space
4 m2
Volume in cubic meters
737 m3
Plot Size
226 m2
Facilities
Mechanische ventilatie
Alarminstallatie
Tv kabel
Airconditioning
Rookkanaal
Glasvezel kabel
Zonnepanelen
Aan water
Aan rustige weg
In woonwijk
Vrij uitzicht
Baerz & Co Property Brochure

Brochure

Videos

Van Herk Makelaars Excellent

Oudehoofdplein 4
3011 TM Rotterdam

xbek@vanherk.nl
+31 102581855

www.vanherk.nl/excellent/

Information / Viewing request

Xandra Bek profile image
Xandra Bek
Real Estate Agent

Buying a Luxury Property in Amstelveen

Amstelveen offers refined residences, a cosmopolitan atmosphere, and exceptional connectivity. The blend of green areas, international amenities, and community sophistication continues to captivate global buyers and families seeking both privacy and vibrant urban connections.